Gå til hovedinnhold

Lilleakerbyen: Lokaler med sentral beliggenhet og god eksponering mot gateplan • Kontor/showroom • Pakering

Fasiliteter

Aircondition, Bredbåndstilknytning, Garasje/P-plass, Heis, Kantine

Beskrivelse
Trappefri adkoms fra gateplan. Godt egnet til showroom.

Lilleakerveien 2B, 1. etg  ca. 1100 m2 BTA  44 arbeidsplasser
Arealet kan enkelt deles i to lokaler på hhv ca. 777 m2 BTA og ca. 322 m2 BTA

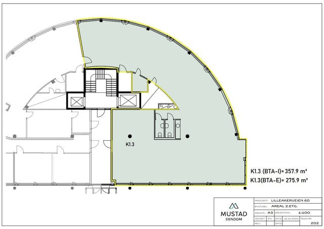
Lilleakerveien 6D, 1. etg • ca. 358 BTA

Lilleakerveien 10, 1. etg • ca. 560 m2 BTA • 30-33 arbeidsplasser
  • Trappefri adkomst
  • Sentralt i Lilleakerbyen
  • Tilgang til kantiner
  • Sykkelparkering med sykkelvask og mekkestasjon
  • Flere serveringssteder i nærheten: Møllefossen café, Fåbro Gård, Pizza de Mimmo, Kafé Grønn + CC Vest med et bredt atvalg av serveringtiilbud|


SERVICE & FASILITETER
Kafé og personalrestaurant - Mulighet for å tilknytte seg flere kantiner på området
Stort, moderne møteromsenter - Tilgang til flere møterom, elegante styrerom, videokonferanse, store kursrom og kreative møterom med en uformell atmosfære i nærliggende bygninger.
Sykkelparkering - Innendørs sykkelparkering i eget rom. Eget område for vask og reparasjon av sykkel.

Nærhet til alt
Kontorene ligger i Lilleakerbyen - et nytt og mangfoldig byområde på begge sider av vakre Lysakerelva og rett ved Lysaker stasjon. Utenfor kontoret venter vakre turområder langs Lysakerelva, et mangfold av aktiviteter, sjarmerende spisesteder og gode shoppingmuligheter.

Kun en kort spasertur fra kontoret ligger kjøpesenteret CC Vest, med over 90 butikker, fra kjente kjedekonsepter til unike nisjebutikker og koselige kafeer. Her finner du også SATS, Vinmonopolet og en av Norges beste dagligvarebutikker.

I Lilleakerbyen skjer det alltid noe, stort og smått - med nærmere 200 arrangementer i året. Her kan du være med på alt fra gratiskonserter, after works og quiz-kvelder til løpegrupper, vintage-markeder, gårdsmarkeder og mye mer.

God og enkel tilgjengelighet
Norges tredje største knutepunkt, Lysaker stasjon, ligger kun få minutters gange unna kontorene. Her går tog, buss og flytog til sentrum, Gardermoen og vestover. I tillegg er det kort til Lilleaker stasjon hvor trikken går hyppig mot sentrum og det går ferge fra Lysaker brygge.

  • Tog til Skøyen – 2 min.
  • Tog til Nationaltheateret - 6 min.
  • Tog til Oslo S – 9 min.
  • Tog til Sandvika - 4 min.
  • Flytoget til Gardermoen - 35 min.
  • Ferge til Nesodden fra Lysaker Brygge - 8 min.
  • Busser går i alle retninger fra Lysaker stasjon - Norges 3. største knutepunkt

BIL & PARKERING - enkel adkomst med bil fra E18 og Ring 3
Svært god parkeringsdekning
Lademuligheter

Mustad Eiendom – med omtanke for hver enkelt og hver meter

  • Familieeid selskap med 150 års tilstedeværelse og tilsvarende perspektiv på fremtidig eierskap
  • Med egen, lokalt tilstedeværende driftsavdeling for bygg og uteområder er vi aldri mer enn et par minutter unna
  • Vertskap for 300 virksomheter og 8.000 kontorbrukere
  • Konsentrert portefølje mellom Lilleaker og Lysaker
  • Utvikler Lilleakerbyen - et nytt og mangfoldig byområde på begge sider av Lysakerelva